
Der eleMMent palazzo Superior ist unser Flaggschiff und derzeit in über 190 Ländern anerkannt als das luxuriöseste und herausragendste Wohnmobil. Das Design spricht für sich, es verbindet die beeindruckendsten Merkmale des Motorsports, der Luftfahrt und des Yachtings in einem automobilen Meisterwerk.
Schon das Design des Führerhauses scheint seiner Zeit voraus – erbaut mit höchster Präzision aus einer speziellen Hochleistungs-Kohlefaser. Designlinien und 36 Zoll Felgenabdeckungen nehmen Anleihe von aktuellsten Rennfahrzeugen. Das Cockpit mit dem Zentraldisplay und MMI Bedienung ist inspiriert vom Flugzeugcockpit-Design, verbunden mit dem Bedienkomfort von Luxuslimousinen.
Die Panoramawindschutzscheibe, die ähnlich wie bei einem Hubschrauber gestaltet ist, kann über eine zweistufig einstellbare Sonnenblende abgedunkelt werden. Die Fahrzeugkonstruktion unterstreicht die starke Designaussage der eleMMent Baureihe bei gleichzeitigem Fokus auf Komfort und Funktionalität. Wir haben uns für einen komplexen Manufakturprozess entschieden, der weit über die herkömmlichen Anforderungen dieser Fahrzeuggruppe hinaus geht. Die selbsttragende und extrem robuste Struktur garantiert eine besondere Langlebigkeit. Das Fahrzeug hat sogar einen Isolierungsgrad, der mit Expeditionsfahrzeugen in anspruchsvollen Witterungsbedingungen vergleichbar ist.
Eine externe Zugangstreppe führt zu dem Oberdeck mit integriertem Loungemobiliar und Fußbodenheizung. Die Innenraumgestaltung genügt höchsten Ansprüchen, perfekt für Ihr mobiles Zuhause.
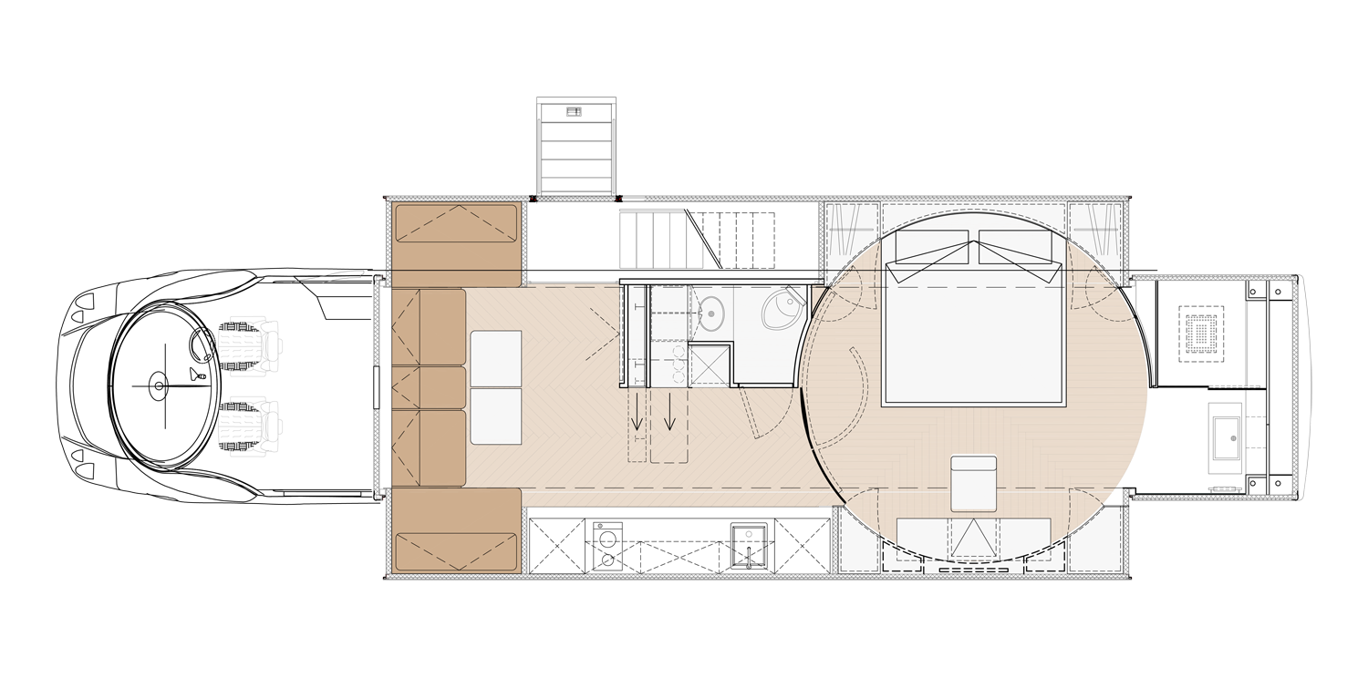
Ein speziell entwickeltes Luftaustauschsystem garantiert ein wohltemperiertes Innenklima. Sogar Luftdruckveränderungen durch das Bewegen der Ausschübe werden dadurch kompensiert. Unterschiedlich programmierbare Temperaturzonen und ein kontinuierlicher Luftaustausch garantieren stets die beste Luftqualität. Der Grundriss des eleMMent palazzo Superior widerspricht allen Klischees eines „Wohnwagens“. Eine sorgfältige Entwicklung des Wohnraumes verspricht den maximalen Komfort für Besitzer und Gäste. Eines der Besonderheiten ist eine 4 Meter lange Couch, eine Bar, Weinschrank sowie ein großer TV Bildschirm gegenüber. Die offene Kleinküche ergänzt das großzügige Raumgefühl.
Das Badezimmer ist diskret von Wohnzimmer und Schlafzimmer abgetrennt. Das große Schlafzimmer verfügt über ein Kingsize -Bett, handgearbeitet vom Hoflieferanten der englischen Queen. Die feine italienische Bettwäsche ist von höchster Qualität. Die Schlafzimmer-Möbel bieten nicht nur enormen Stauraum, sondern auch einen Schminktisch und einen Großbild-TV. Der angrenzende Wellnessbereich ist ein privater Rückzugsort für die Eigner und verfügt über eine 1,5 qm verglaste Regendusche.
| Antrieb | |
|---|---|
| Motor | Volvo, 6 Zylinder Reihenmotor, bis zu 600PS |
| Getriebe | Automatik |
| Marchi Mobile Go Green Vorteil | drag coefficient of cW 0,3615 due to aerodynamics |
| Gesamtgewicht | 28 t |
| Abmessungen | |
|---|---|
| Länge | 13,70 Meter /45 Fuß (12 Meter / 40 Fuß für EU mit unterschiedlichem Grundriss) |
| Höhe | 4,00 Meter / 13 Fuß |
| Höhe inkl. Dachterrasse | 6 Meter / 20 Fuß |
| Breite im fahrbaren Zustand | 2,55 Meter / 8,4 Fuß |
| Breite im aufgebauten Zustand | 5 Meter / 16,4 Fuß |
| Wohnfläche | 68 m2/ 732 sqft |
| Führerhaus | |
|---|---|
| Material | Carbonfaser |
| Cockpit | eleMMent Design Cockpit mit Flugzeug Armaturenbrett und Panorama-Verglasung (per Knopfdruck abdunkelbare Sonnenblende) |
| Zusatzfunktionen | elektrische Schiebetür, Stauraum vorne, MMI-Navigation über zentralen TFT Monitor, Dachkonsole |
| Highlight | Original Askania Flugzeugarmatur als Borduhr |
| Karosserie | |
|---|---|
| Raumerweiterung | 2 (vollautomatisch mit Notantrieb) |
| Dachterrasse | 1 |
| A/C | einzigartiges Luft-Zirkulations-System mit enormer Leistungsfähigkeit, Fußbodenheizung |
| Stromversorgung | Fremdeinspeisung, Intelligentes Strom-Management- System, zwei Stromgeneratoren |
| Wassertanks | voll isolierter 800 Liter Frischwassertank, 800 Liter Abwassertank, 250 Liter Fäkalientank |
| Stauraum | Heck-Kofferraum, seitliches Staufach |
| Schleppbetrieb | Optional |
| Raumaufteilung | |
|---|---|
| Lounge Bereich |
|
| Küche |
|
| WC |
|
| Schlafzimmer |
|
| Spa-Bereich |
|
| Multimedia / Ambiente |
|
| Haupteingang / Sky-Lounge |
|